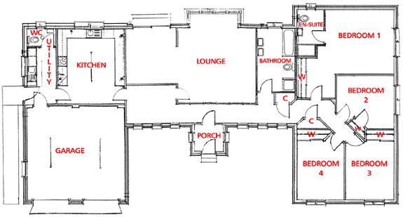
sample plan